


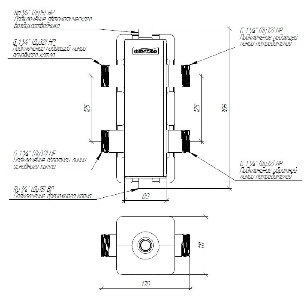
Гидравлический разделитель Gidruss GR-80-32EPP до 80 кВт 1 1/4" EPP термоизоляция
Гидроразделитель в теплоизоляции GR-80-32.EPP необходим в системах отопления до 700 м² для обвязки двух настенных котлов до 80 кВт или одного напольного с внешним насосом до 70 кВт.




