


Коллектор модульный Gidruss MK-100-4DU.EPP до 100 кВт 1 1/4" 5 контуров EPP термоизоляция
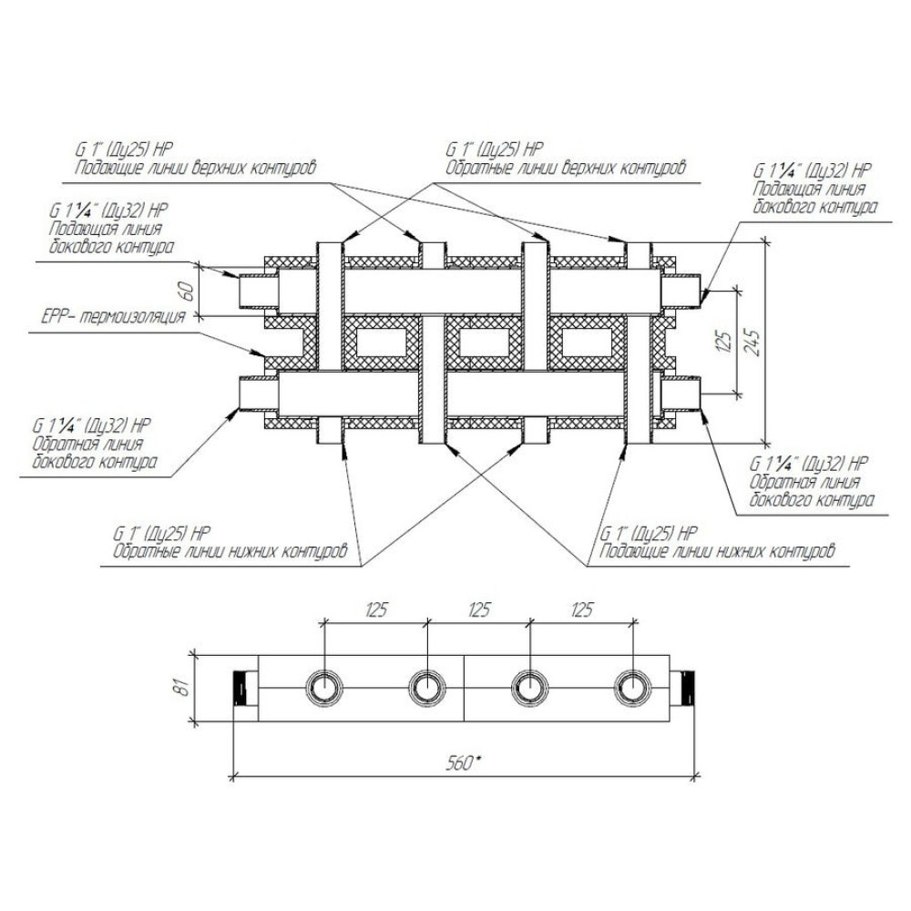
Модульный коллектор отопления с термоизоляцией предназначен для распределения и сбора теплоносителя по контурам-потребителям G 1″ и одному G ¼″, где подающая и обратная линия каждого контура расположены в одной плоскости с осевым расстоянием 125 мм.
Максимальная подача, м3/ч - 4.3
Максимальная отапливаемая площадь, м² 800
Магистральное присоединение G 1 1/4″ (НР)
Подключение потребителей - G 1″ (НР)
Количество контуров - 5
Мощность максимальная, кВт 100
Вылет от стены, мм 75-105
Межосевое расстояние, мм 125
Доп. присоединение - 1/2" ВР




